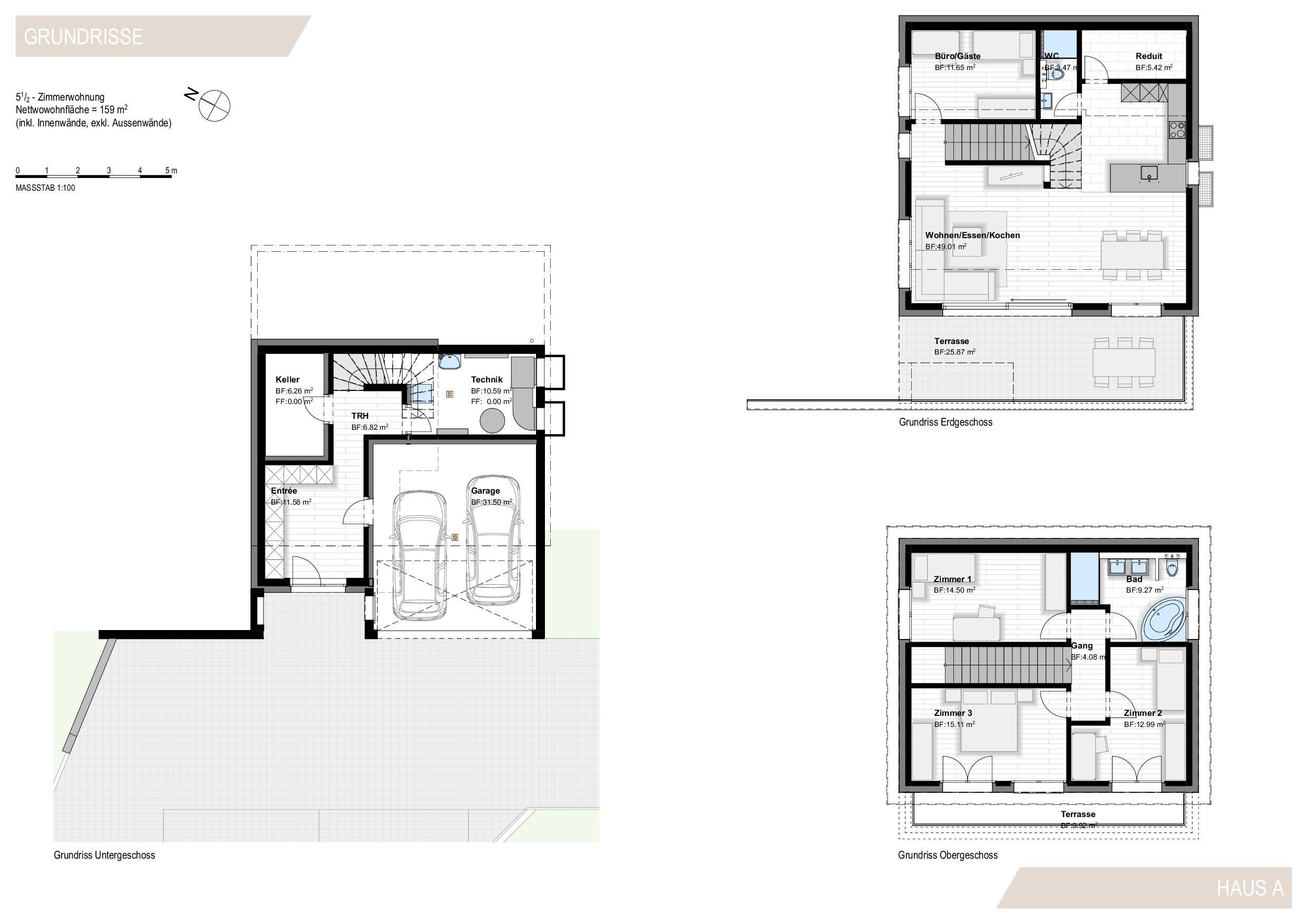
An der Bannwaldstrasse entstehen im Ortsteil Deckhus zwei grosszügige Einfamilienhäuser mit 5 1/2-Zimmer respektive
6 1/2-Zimmer. Die attrakiven Einfamilienhäuser liegen am Rande des Quariers und bieten einen wunderbare Aussicht auf das Dorf Schwarzenberg. Die Grundrisse sind grosszügig gestaltet und der offene Wohn-, Ess- und Kochbereich bilden das Herzstück im Erdgeschoss. Durch die grossen Verglasungen fliesst viel Licht in das Innere. Vom Wohn- und Essbereich gelangt man direkt auf den Sitzplatz, an welchen eine schöne Rasenfläche grenzt. Der Hauptzugang befindet sich im Untergeschoss
- Haus A - 5,5 Zimmer, Nettowohnfläche 159 m2, Doppelgarage, Grundstücksfläche 463 m², 2 Badezimmer
- Preis CHF 1'620'000
- Haus B - 6,5 Zimmer, Nettowohnfläche 175 m2, Doppelgarage, Grundstücksfläche 514 m², 2 Badezimmer
- Preis CHF 1'710'000
Mit uns sparen Sie – unsere Häuser sind energiesparend.
Wir belasten nicht die Natur – wir verwenden Materialien aus erneuerbaren Quellen.
Wir bauen hochwertige und erschwingliche Häuser.
Wir verwenden eine präzise Wärmedämmung.
Sie zahlen den Preis erst nach der Fertigstellung des Baus – der vereinbarte Preis ist der Endpreis.
Sehen Sie sich an, wie die
Neubau von zwei Familienhäusern in Schwarzenberg
Schwarzenberg
Die Gemeinde Schwarzenberg liegt am Fuss des Pilatus auf der Sonnenterrasse oberhalb von Malters. Sie liegt auf 850 m ü.M. und ist flächenmässig die grösste Gemeinde im Wahlkreis Luzern-Land. Der Dorfladen, erstklassige Restaurants und divers Vereine tragen zu einem lebendigen Dorfleben bei. Das Dorf Schwarzenberg und die weiteren Gemeindeteile sind eingebettet in eine beeindruckende Landschaft. Mit über 100km Wanderwege ist das Gebiet ein sehr beliebter Naherholungsraum. Die Gemeinde ist durch einen Postautokurs seitens Malters und von Kriens her mit ÖV erschlossen. Mit dem Auto erreicht man Schwarzenberg von der Stadt Luzern in ca. 25 Minuten.
Wir bauen für Sie ein Haus nach Ihren Vorstellungen
Modernes und gesundes Wohnen
Die Holzhäuser von KESEYA Swiss werden aus erneuerbaren Materialien hergestellt, die die Umwelt nicht unnötig belasten. Das Ergebnis ist ein harmonisches und gesundes Lebensumfeld











+41 76 671 17 81
buchta@keseya.ch